合肥装饰公司>合肥装修公司>办公室装修>厂房装修>展厅装修>办公楼设计装修 > 精品案例 > 展厅装修 > 合肥长江180步阳门200平方工业风展厅装修设计项目
项目类型:工业风展厅装修设计 专业展厅装修设计公司 合肥展厅装修公司
项目设计:半山装饰展厅设计部A组
项目面积:200㎡
所在地:安徽·合肥市
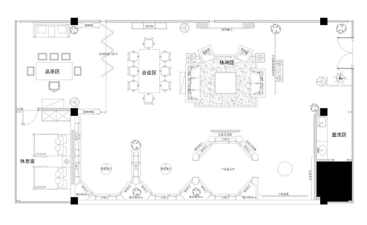
设计说明:
该方案原址为一个废弃厂房,现规划成了商业街,厂房经设计充分利用,成为一个门窗公司展厅。
该展厅装修设计案例采用工业风,工业风最初表达的理念就是桀骜不驯,与世俗格格不入的自由不羁,而最原始、最单纯、最简洁的黑白灰三色,在视觉上就带给人简约又神秘的感受,让风格展现变得更加立体。






安徽半山装饰工程有限公司是一家从事多年的室内设计装饰装修企业,具有总包叁级、装饰装修专项施工乙级以及工程设计专项资质,主要致力于办公室装修、写字楼装修、厂房装修、展厅装修、售楼部装修、样板间装修、民宿装修、店面店铺装修、学校装修、及其它商业空间装修设计施工一体化服务。咨询电话:18919604649