• 加微信沟通

  • 18919604649

合肥装饰公司>合肥装修公司>办公室装修>厂房装修>展厅装修>办公楼设计装修 > 精品案例 > 售楼部/样板间 > 售楼部 > 淮北.华松御苑售楼部新中式装饰装修项目

算算装修要花多少钱?

  • *您的隐私将会严格保密,请放心填写!

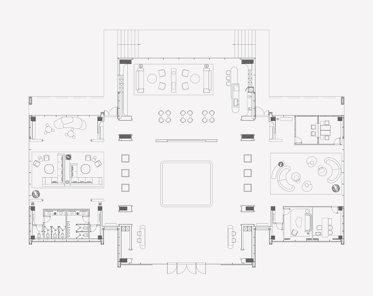
淮北.华松御苑售楼部新中式装饰装修项目

发布时间:2023-11-13 09:47:45 浏览次数:

项目类型:新中式售楼部装修   专业售楼部装修设计公司    合肥售楼部装修公司

项目设计:半山装饰售楼部设计部A组

项目面积:1000㎡

所在地:安徽·淮北市

设计说明:

售楼部装修案例淮北市相山区黎苑路市政府大楼北侧。以现代简约为主向导,穿插中式的元素,呈现出新中式风格

从明清的北京故宫,到中世纪的西方园林,对称布局总是能带给人庄重、威严的感觉。售楼处经常运用对称布局,以在有限的空间里营造出仪式感,表达出对贵宾的尊崇礼遇。

淮北.华松御苑售楼部新中式装饰装修项目(图1)



沙盘是最适合设计师发挥想象力的地方。四四方方的沙盘,弧形造型吊顶,印证着“天圆地方”的说法,让沙盘当之无愧的成为视觉焦点。

淮北.华松御苑售楼部新中式装饰装修项目(图2)


完全对称的布局可能会太过单调,居中的吊灯及酒架作为视觉焦点,左右错开,略微的变化增加空间趣味。

淮北.华松御苑售楼部新中式装饰装修项目(图3)


洽谈休闲区落地大玻璃的应用,这样的空间链接才能让顾客感到楼盘的智能化。同时玻璃外的景物及波光粼粼的水面,更能使空间加入一些动态的元素,以起到动态与静态的交融,整体气氛给交流沟通提供良好的环境。

淮北.华松御苑售楼部新中式装饰装修项目(图4)


在中国传统意识当中,一望无际的通透从来都不是主流审美。一道屏风,不止分隔空间功能,更是让室内景致有节奏的映入眼帘。

淮北.华松御苑售楼部新中式装饰装修项目(图5)

安徽半山装饰工程有限公司是一家从事多年的室内设计装饰装修企业,具有总包叁级、装饰装修专项施工乙级以及工程设计专项资质,主要致力于办公室装修写字楼装修厂房装修展厅装修售楼部装修样板间装修民宿装修店面店铺装修学校装修、及其它商业空间装修设计施工一体化服务。咨询电话:18919604649

合肥装修公司     合肥工装公司




装修案例推荐