• 加微信沟通

  • 18919604649

合肥装饰公司>合肥装修公司>办公室装修>厂房装修>展厅装修>办公楼设计装修 > 精品案例 > 售楼部/样板间 > 售楼部 > 太平·某山庄新中式1200平方售楼部装饰装修工程

算算装修要花多少钱?

  • *您的隐私将会严格保密,请放心填写!

太平·某山庄新中式1200平方售楼部装饰装修工程

发布时间:2023-11-13 10:47:44 浏览次数:

项目类型:新中式售楼部装修   专业售楼部装修设计公司    合肥售楼部装修公司

项目设计:半山装饰售楼部设计部C组

项目面积:1200㎡

所在地:安徽·黄山市

设计说明:

售楼部装修案例位于黄山市黄山区太平湖镇。以典型的徽派风格的外立面,装饰装修以新中式风格为主!

在设计中,如何超越风格的局限、欲念的阻隔,材料的机巧,营造一种源自本质的道妙意境,让周遭环境、室内空间与人产生深层谐振,实现居住者身心安止,精神提升的目的,是我们思索最久的。
    “清风明月本无价,近水远山皆有情”。我们试图寻求古时“儒雅禅静”的一种精神状态。在这一理念下展开设计,讲述徽州园林宅园合一,可赏,可游,可居,这种建筑形态,人类依赖自然,追求与自然和谐相处,美化和完善自身居住环境的一种创造。围绕主题:静“赏”、“悦”游、“雅”居。三大方向在设计中寻找自然、环境与人的平衡,匠心独运地立足于“雅静”,著力于“创新”,用自然元素和文化的演译,形成了一个艺术与人文兼具的艺术空间。

太平·某山庄新中式1200平方售楼部装饰装修工程(图1)

太平·某山庄新中式1200平方售楼部装饰装修工程(图2)


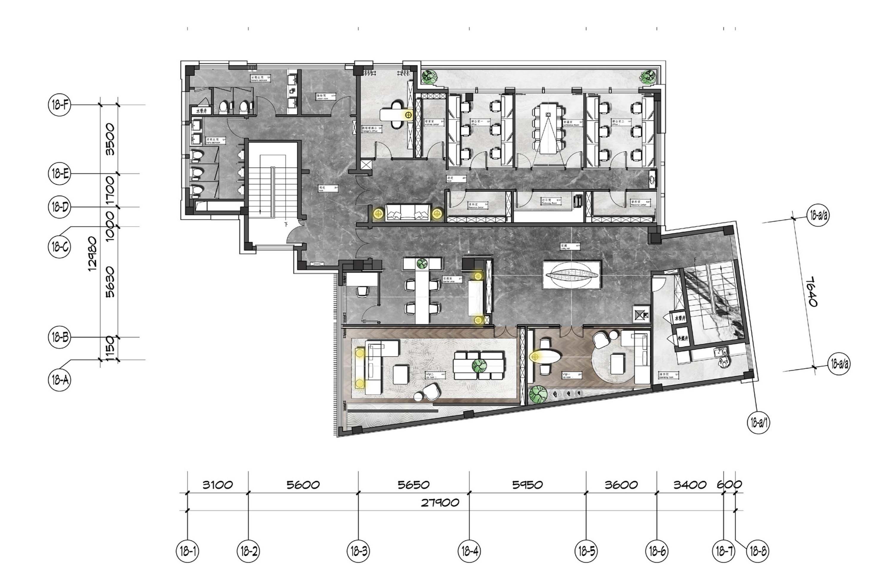
“山光石影”。首層空间通透,簡約,容寂。如人之心包虛無,無所有而無物不有。視力所及,凡塵之地上,僅僅是現世人生的一處安止之所。

太平·某山庄新中式1200平方售楼部装饰装修工程(图3)



“木映花承”。二層空间內斂協調,優雅沉靜,古雅自然的點景小品,虛實結合簡約靈巧的家具及雕塑,皆是對塵世浮華的退隱,對文雅格調、空靈意境的描繪和營造。

太平·某山庄新中式1200平方售楼部装饰装修工程(图4)


太平·某山庄新中式1200平方售楼部装饰装修工程(图5)




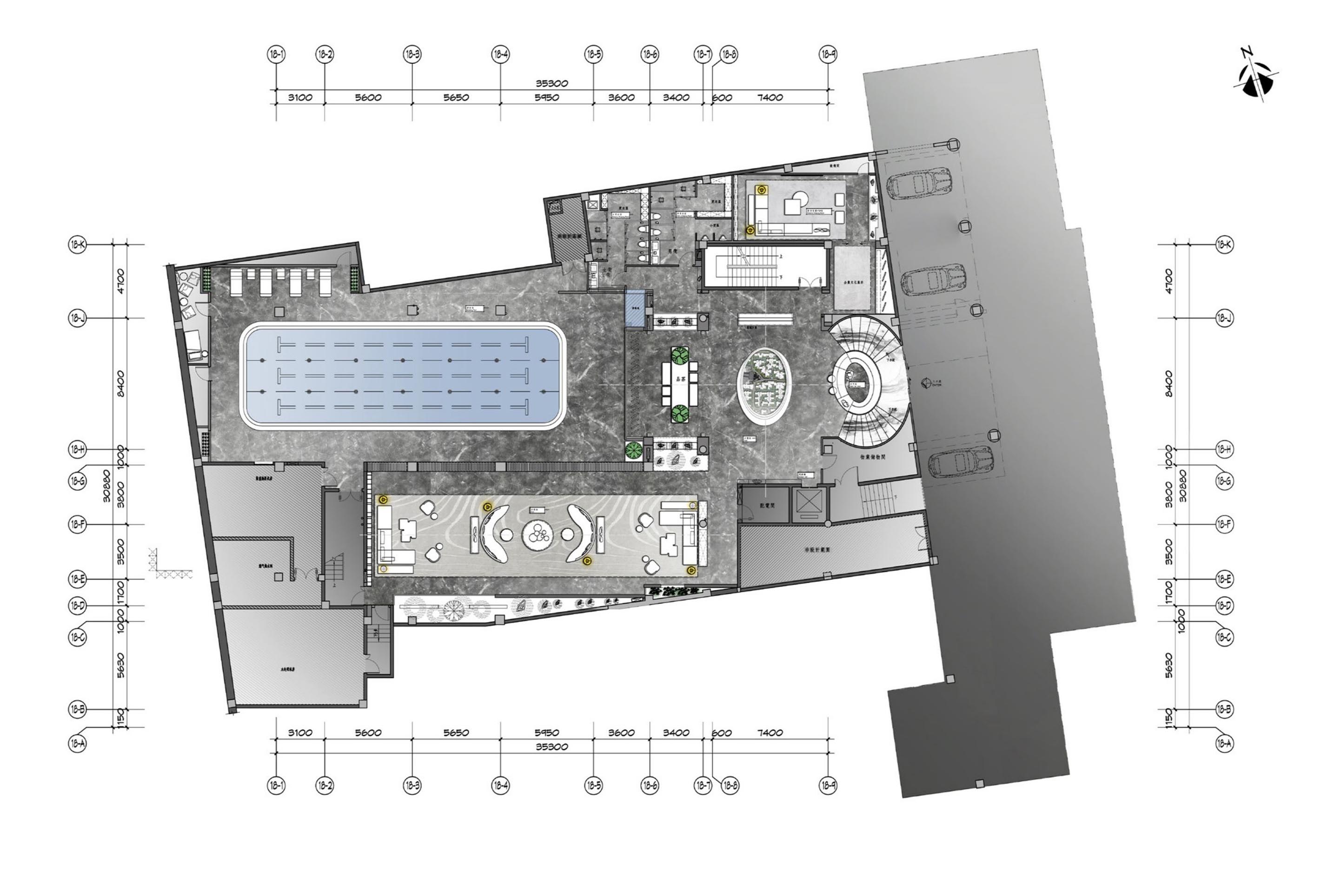
“曲水之趣”。負一層空间閒適靈動,落座於洽談區,開始安靜交談,吳儂軟語,感知空間與人之間的交流與共鳴,隨意一框,都見一景,一切都如此自然和諧。

太平·某山庄新中式1200平方售楼部装饰装修工程(图6)


太平·某山庄新中式1200平方售楼部装饰装修工程(图7)


安徽半山装饰工程有限公司是一家从事多年的室内设计装饰装修企业,具有总包叁级、装饰装修专项施工乙级以及工程设计专项资质,主要致力于办公室装修写字楼装修厂房装修展厅装修售楼部装修样板间装修店面店铺装修学校装修、及其它商业空间装修设计施工一体化服务。咨询电话:18919604649

合肥装修公司     合肥工装公司


装修案例推荐