• 加微信沟通

  • 18919604649

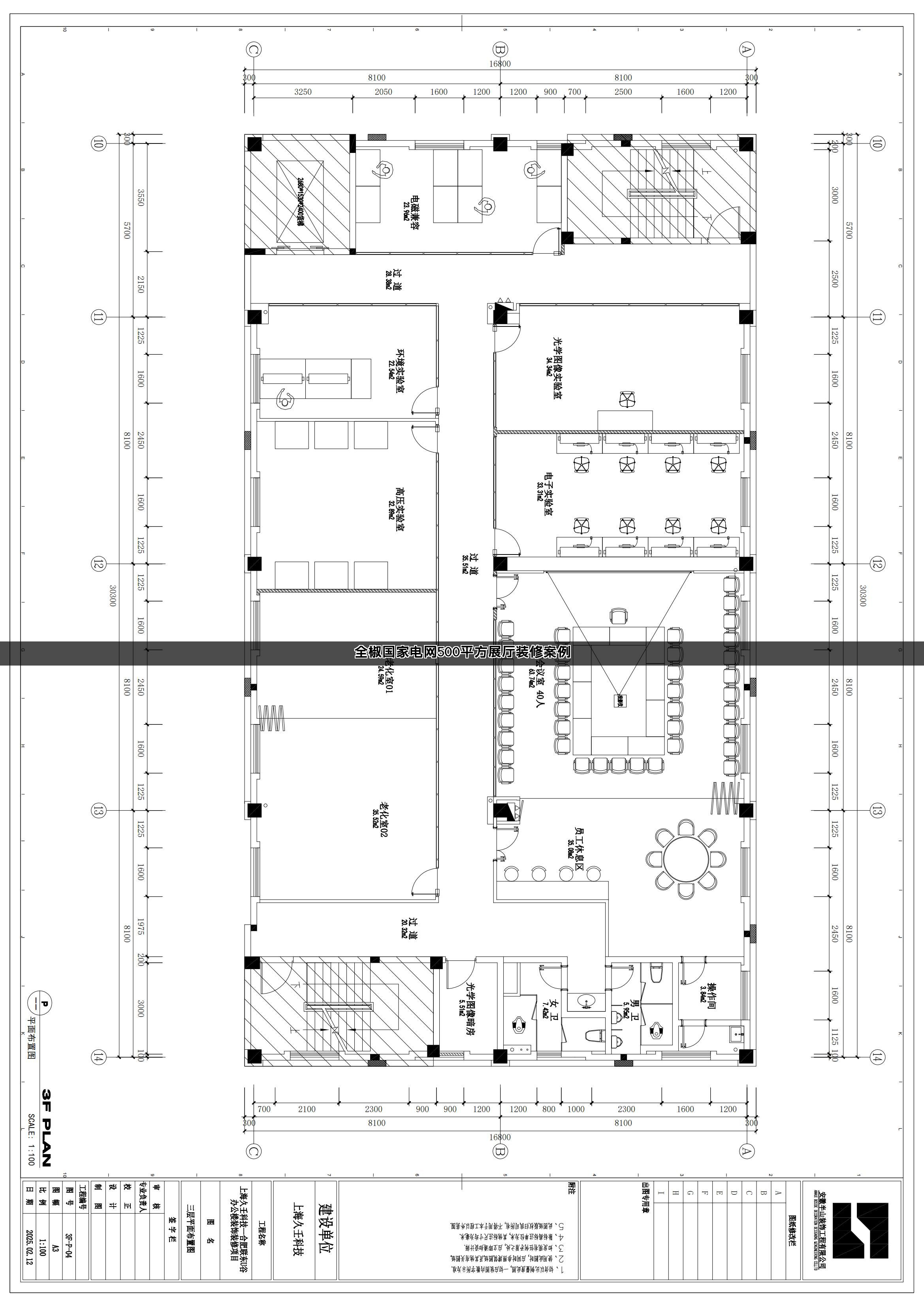
合肥装饰公司>合肥装修公司>办公室装修>厂房装修>展厅装修>办公楼设计装修 > 知名客户 > 现代简约展厅装修设计案例解析——滁州500㎡企业展示空间打造

算算装修要花多少钱?

  • *您的隐私将会严格保密,请放心填写!

现代简约展厅装修设计案例解析——滁州500㎡企业展示空间打造

发布时间:2025-05-21 13:53:48 浏览次数:

项目类型:现代简约展厅装修设计   专业展厅装修设计公司    合肥展厅装修公司

项目设计:设计D组

项目面积:500

所在地:滁州市

设计说明:

企业展厅作为最直观的企业形象及产品宣传平台,要给领导、客户、媒体留下深刻印象,塑造企业品牌形象。我们从企业的形象定位出发,运用巧妙的创意催生空间的企业个性特征,向参观者传达企业形象、产品的展示。根据企业特点和行业特性我们会提炼出一些或者一个符号并结合色彩的运用贯穿整个展厅,突出企业形象,塑造和传播形象的统一。同时利用一些先进的技术设备和声光电的有机结合实现时代感和科技感,以及让参观者喜欢这种氛围。

该展厅装修设计项目以企业发展历程展示为主,没有选用企业VI色来贯穿整个展厅,而是选择大量使用木纹色来装饰整个展厅,合理的运用色彩搭配比例及造型来体现现代化展厅的视觉效果。

平面布局:

展厅展示区空间分为两部分,第一部分为结合入口门厅的公共区域,包括序厅、公司展示区、情况介绍和企业文化等区域。

第二部分为多媒体展厅区。

空间的处理和造型的搭配:

地面可以选用800*800亮光砖,加以与地面水平的光带和部分色彩及层次的搭配,给人以时代感、科技感,运用展示隔墙的合理布局和空间造型完美的结合,营造出合理的立体展示效果。

天花选用主体木色方通加上部分造型装饰的处理,与展墙、地面相呼应,犹如企业各部门间的完美协调与配合。

灯光的处理和运用:采用集成智能控制系统,便于操作与管理。明暗搭配,冷暖协调,主次分明,部分区域加以黄色光带、幻化的光影变化增加氛围的营造。

设备的管理:由于静态空间展示的局限性,在展厅内重点区域安排一些数字媒体设备,实现展览与参观互动,彻底颠覆传统的播放宣传片的静态汇报模式,让展厅成为宣扬自身在推动技术进步、创新商业模式、拓展全球市场等方面成就的最佳平台。并运用一体智能控制所有数字媒体设备以透彻的智能对所有数字设备实现一体控制,方便对设备的管理与使用。













安徽半山装饰工程有限公司是一家从事多年的室内设计装饰装修企业,具有总包叁级、装饰装修专项施工乙级以及工程设计专项资质,主要致力于办公室装修写字楼装修厂房装修展厅装修售楼部装修样板间装修民宿装修店面店铺装修学校装修、及其它商业空间装修设计施工一体化服务。咨询电话:18919604649

合肥装修公司     合肥工装公司



现代简约展厅装修设计案例解析——滁州500㎡企业展示空间打造(图1)

装修案例推荐